- 学生お部屋ナビ トップ
- オリゾンビル
物件情報
- 賃料
- 118,000円
- 管理費等
- ---円
- 敷金/礼金
- 3ヶ月 / 1ヶ月
- 保証金/敷引/償却
- - / - / -
- 住所
- 広島市安佐南区祇園4丁目
- 沿線・最寄り駅
- JR可部線(下祇園)徒歩8分
JR可部線(古市橋)徒歩22分 - 間取り
- 3LDK
- 築年数
- 2007年4月(築19年)
- 専有面積
- 90.79㎡
- 階数・方位
- 8階 / 9階建て 東
- 設備・特徴
-
★中四国管理戸数No.1の【良和ハウス】LINEで接客もOK
◆最寄りのスーパーまで徒歩7分◆モニタ付オートロックで来客の確認ができるから安心♪◆うれしい温水洗浄便座、シャワー付き洗面台あり♪◆エレベーター◆オートロック◆お気軽に良和ハウスまでお問合せください★
この物件のお問い合わせ番号
YW-71341
物件詳細
- 物件名
- オリゾンビル
- 住所
- 広島市安佐南区祇園4丁目
- 沿線・最寄り駅
- JR可部線(下祇園)徒歩8分
JR可部線(古市橋)徒歩22分
- 物件構造
- 鉄筋コンクリート(RC)造
- 所在階 / 総階数
- 8階 / 9階
- 総戸数
- 18戸
- 築年月
- 2007年4月(築19年)
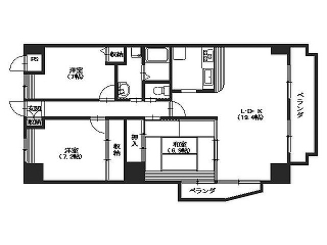
- 間取り / 間取り詳細
- 3LDK / LDK19.4 洋7.2 洋7.0 和6.9
- 専有面積
- 90.79㎡
- 設備
- フローリング/バルコニー/2面バルコニー/エアコン/クローゼット/下駄箱/収納スペース/オートロック/TVドアホン/ガスコンロ可/カウンターキッチン/システムキッチン/2口コンロ/3口以上コンロ/シャンプードレッサー/シャワー/シャワー付きトイレ/室内洗濯機置場/バストイレ別/トイレ/洗面所独立/CSアンテナ/インターネット光回線/2階以上/プロパンガス/二人入居可/陽当り良好/IT重説 対応物件
- 向き
- 東
- 入居可能予定日
- 要相談
- 取引態様
- 仲介
- 部屋コード
- 902469_801
- 更新料
- -
- 保証会社
- 保険
- 要 2年
- 備考・特記事項
- YW-71341
情報更新日 : 2025年11月17日
次回更新予定日:次回更新日は情報更新日の2週間以内
地図・周辺環境
- ショッピングセンターまで80分
- スーパーまで5分
- コンビニまで6分
- ドラッグストアまで3分
- 小学校まで13分
取扱店舗
広島県広島市安佐南区西原4丁目 34-23免許番号 : 国土交通大臣(2)第9113号営業時間 : 10:00~18:00定休日:火曜日
この物件のお問い合わせ番号
YW-71341
同じ建物の他の物件
- 間取図
- 階
-
- 賃料
- 管理費
- 敷金・礼金
-
- 間取り
- 専有面積
- 360°パノラマ
-
- 3階
-
-
110,000円
- + 管理費---円
-
-
- 敷3ヶ月
- 礼1ヶ月
-
- 3LDK
- /
- 90.79㎡
