














- 学生お部屋ナビ トップ
- ボイスビル6
物件情報
- 賃料
- 50,000円
- 管理費等
- ---円
- 敷金/礼金
- 2ヶ月 / 1ヶ月
- 保証金/敷引/償却
- - / - / -
- 住所
- 広島市中区本川町2丁目
- 沿線・最寄り駅
- JR山陽本線(横川)徒歩21分
広島電鉄 本線(本川町)徒歩5分 - 間取り
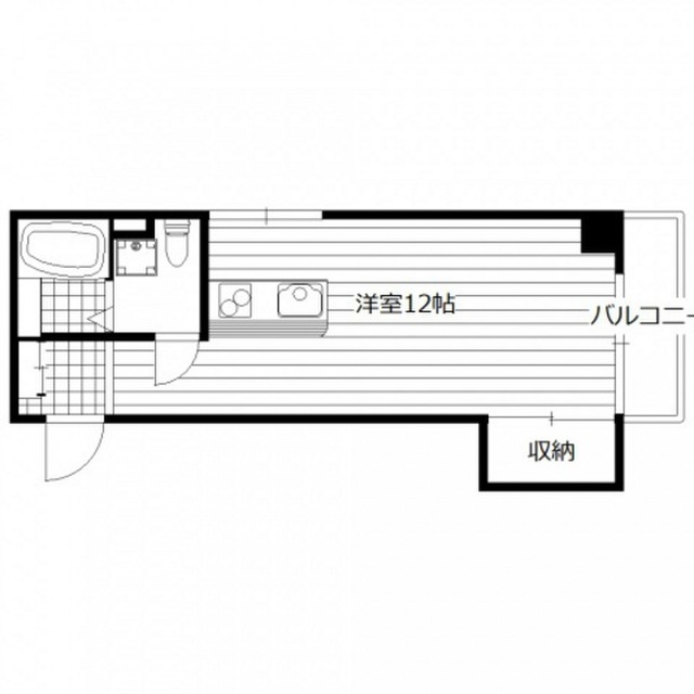
- 1R
- 築年数
- 1984年2月(築42年)
- 専有面積
- 33.00㎡
- 階数・方位
- 5階建て
- 設備・特徴
-
★中四国管理戸数No.1の【良和ハウス】LINEで接客もOK
◆うれしい都市ガス♪◆最寄りのスーパーまで徒歩4分!◆ペット飼育時敷金+1ヶ月◆TVインターホンで来客の確認ができるから安心♪◆エアコン、温水洗浄便座あり♪◆お気軽に良和ハウスまでお問合わせください★
この物件のお問い合わせ番号
YW-37935010
物件詳細
- 物件名
- ボイスビル6
- 住所
- 広島市中区本川町2丁目
- 沿線・最寄り駅
- JR山陽本線(横川)徒歩21分
広島電鉄 本線(本川町)徒歩5分
- 物件構造
- 鉄筋コンクリート(RC)造
- 所在階/総階数
- 3/5階
- 総戸数
- -
- 築年月
- 1984年2月(築42年)
- 間取り/間取り詳細
- 1R / 洋15.0
- 専有面積
- 33.00㎡
- 設備
- フローリング/バルコニー/エアコン/クローゼット/下駄箱/TVドアホン/防犯カメラ/ガスコンロ可/カウンターキッチン/システムキッチン/2口コンロ/シャワー/シャワー付きトイレ/室内洗濯機置場/バストイレ別/トイレ/BSアンテナ/インターネット光回線/2階以上/ペット可/都市ガス/IT重説 対応物件
- 向き
- 東
- 入居可能予定日
- 要相談
- 取引形態
- 他社一般
- 部屋コード
- 926990_303
- 更新料
- -
- 保証会社
- 保険
- 要 2年
- 備考・特記事項
- YW-37935010
最終更新日 : 2025年10月02日
地図・周辺環境
- 小学校まで6分
- ショッピングセンターまで12分
- スーパーまで6分
- コンビニまで3分
- ドラッグストアまで4分
取扱店舗

広島県広島市中区十日市町1丁目 4-28宅建免許番号 : 国土交通大臣(2)第9113号営業時間 : 10:00~18:00定休日:火曜日
この物件のお問い合わせ番号
YW-37935010
同じ建物の他の物件
- 同じ最寄り駅の物件を探す
- JR山陽本線:横川駅
- 広島市中区の暮らし情報
- エリア紹介:広島市中区