

















- 学生お部屋ナビ トップ
- グランマーレ18
物件情報
- 賃料
- 62,000円
- 管理費等
- 3,000円
- 敷金/礼金
- 1ヶ月 / 1ヶ月
- 保証金/敷引/償却
- - / - / -
- 住所
- 広島市中区平野町
- 沿線・最寄り駅
- 広島電鉄 宇品線(御幸橋)徒歩5分
広島電鉄 宇品線(広電本社前)徒歩6分 - 間取り
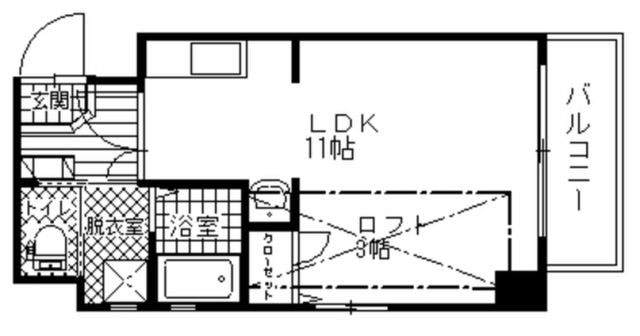
- 1R
- 築年数
- 2006年3月(築20年)
- 専有面積
- 27.40㎡
- 階数・方位
- 7階建て
- 設備・特徴
-
★広島でお部屋を探すなら管理戸数No.1の良和ハウスへ★
設備充実!ロフト付です★電停・買い物徒歩圏内!築浅単身用マンションです! 千田町の便利なエリア! 人気物件ですのでお問い合わせはお早めに♪
この物件のお問い合わせ番号
YW-370157
物件詳細
- 物件名
- グランマーレ18
- 住所
- 広島市中区平野町
- 沿線・最寄り駅
- 広島電鉄 宇品線(御幸橋)徒歩5分
広島電鉄 宇品線(広電本社前)徒歩6分
- 物件構造
- 鉄筋コンクリート(RC)造
- 所在階/総階数
- 7/7階
- 総戸数
- -
- 築年月
- 2006年3月(築20年)
- 間取り/間取り詳細
- 1R / 洋11.0
- 専有面積
- 27.40㎡
- 設備
- ロフト/バルコニー/全居室フローリング/エアコン/クローゼット/ウォークインクローゼット/下駄箱/オートロック/TVドアホン/人感センサー/宅配BOX/防犯カメラ/オープンキッチン/独立洗面台/シャンプードレッサー/シャワー/浴室乾燥機/シャワー付きトイレ/室内洗濯機置場/バストイレ別/トイレ/洗面所独立/2階以上/IT重説 対応物件
- 向き
- 南東
- 入居可能予定日
- 即入可
- 取引形態
- 他社一般
- 部屋コード
- 909715_701
- 更新料
- -
- 保証会社
- 保険
- 要 2年
- 備考・特記事項
- YW-370157
最終更新日 : 2025年10月03日
地図・周辺環境
- 小学校まで7分
- スーパーまで4分
- ショッピングセンターまで25分
- 病院まで7分
- 役所まで14分
取扱店舗

広島県広島市中区三川町6-13 宅建免許番号 : 国土交通大臣(2)第9113号営業時間 : 10:00~18:00定休日:木曜日
この物件のお問い合わせ番号
YW-370157