













- 学生お部屋ナビ トップ
- プレジール
物件情報
- 賃料
- 60,000円
- 管理費等
- ---円
- 敷金/礼金
- 3ヶ月 / 0ヶ月
- 保証金/敷引/償却
- - / - / -
- 住所
- 広島市安佐南区長束1丁目
- 沿線・最寄り駅
- JR可部線(安芸長束)徒歩10分
広島高速交通アストラムライン(祇園新橋北)徒歩16分 - 間取り
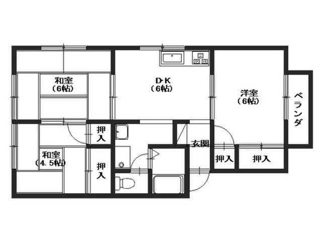
- 3DK
- 築年数
- 1987年6月(築39年)
- 専有面積
- 52.04㎡
- 階数・方位
- 2階建て
- 設備・特徴
-
管理戸数広島No.1の良和ハウス♪LINEでご提案もできます
近くにあってよかった♪コンビニ徒歩圏内★通勤途中や帰宅途中でごはんを買えるので、時間を効率的に使えます!気になる上階からのストレスがないことは、大きなメリット☆静かな生活環境が手に入りやすい最上階♪
この物件のお問い合わせ番号
YW-345296
物件詳細
- 物件名
- プレジール
- 住所
- 広島市安佐南区長束1丁目
- 沿線・最寄り駅
- JR可部線(安芸長束)徒歩10分
広島高速交通アストラムライン(祇園新橋北)徒歩16分
- 物件構造
- 軽量鉄骨(S)造
- 所在階/総階数
- 2/2階
- 総戸数
- -
- 築年月
- 1987年6月(築39年)
- 間取り/間取り詳細
- 3DK / DK6.0 和4.5 洋6.0 和6.0
- 専有面積
- 52.04㎡
- 設備
- フローリング/バルコニー/南向き/クローゼット/下駄箱/収納スペース/独立洗面台/シャンプードレッサー/シャワー/シャワー付きトイレ/室内洗濯機置場/バストイレ別/トイレ/洗面所独立/2階以上/プロパンガス/閑静な住宅街/IT重説 対応物件
- 向き
- 南
- 入居可能予定日
- 即入可
- 取引形態
- 他社一般
- 部屋コード
- 902785_201
- 更新料
- -
- 保証会社
- 20
- 保険
- 要 2年
- 備考・特記事項
- YW-345296
最終更新日 : 2025年10月04日
地図・周辺環境
- ショッピングセンターまで58分
- スーパーまで8分
- コンビニまで4分
- 小学校まで8分
- 中学校まで28分
取扱店舗

広島県広島市安佐南区西原4丁目 34-23宅建免許番号 : 国土交通大臣(2)第9113号営業時間 : 10:00~18:00定休日:火曜日
この物件のお問い合わせ番号
YW-345296
同じ建物の他の物件
- 間取図
- 階
-
- 賃料
- 管理費
- 敷金・礼金
-
- 間取り
- 専有面積
- 360°パノラマ
-
- 1階
-
-
58,000円
- + 管理費---円
-
-
- 敷3ヶ月
- 礼0ヶ月
-
- 3DK
- /
- 52.04㎡
- 同じ最寄り駅の物件を探す
- JR可部線:安芸長束駅
- 広島市中区の暮らし情報
- エリア紹介:広島市安佐南区